Appartamento a Savona

RIF: ID 118
questa scheda è stata visitata 2313 volte

Prezzo: 130 000




Descrizione Zona:

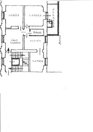
Savona Ufficio in p.zza del Popolo al 1 piano, ingresso a sala d’aspetto, 3 studi, cucina (oppure 4° studio), bagno


Caratteristiche:

Savona Ufficio in p.zza del Popolo al 1 piano, ingresso a sala d’aspetto, 3 studi, cucina (oppure 4° studio), bagno e veranda lato cortile (NON ha balconi sulla piazza ma solo finestre).
Porta blindata, finestre nuove con doppi vetri.
Termoautonomo. Spese condominiali euro 30/mese.
Piccoli lavori di personalizzazione.

PREZZO eurO 130.000

Per informazioni e visite, rispondiamo direttamente (Rigo) al 335 532 0067
Ufficio di Savona via Ratti, 3/2 (da p.zza Mameli) – www.absimmobiliare.it
mail: immobiliare.abs@gmail.it

Informazioni Immobile

  • N. Riferimento: ID 118
  • Località: Savona
  • Tipo Immobile: Appartamento
  • Prezzo: 130 000
  • Classe Energetica: certificazione in itinere
  • IPE kwh/mq anno:

Savona: Appartamento
annuncio inserito da:
-ABS Immobiliare - Savona
(Visita il Sito dell'Agenzia)

VISUALIZZA ALTRI ANNUNCI DELL'AGENZIA

Appartamento a Savona, vendita Appartamento, immobiliare Savona

Appartamento Savona case liguria
per maggiori informazioni

oppure telefona a:
-ABS Immobiliare - Savona
335 5320067 - 019 827111


CHIEDI MAGGIORI INFORMAZIONI
-ABS Immobiliare - Savona

immobiliare -ABS Immobiliare - Savona, Appartamento, Savona Appartamento
Savona Ufficio in p.zza del Popolo al 1 piano, ingresso a sala d’aspetto, 3 studi, cucina (oppure 4° studio), bagno